Проект дома из клеенного бруса 5105

Хороший дом создается, а не покупается. Спросите у нас, каким будет ваш! 
Хит продаж
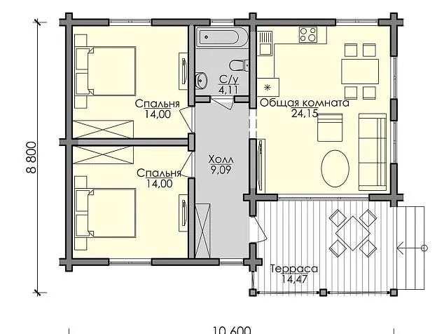
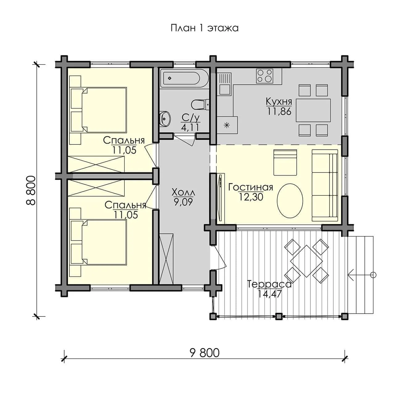
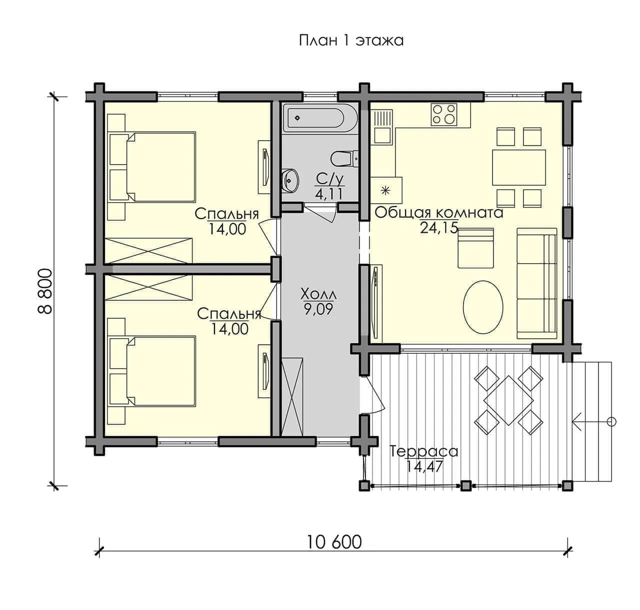
Площадь
74 м2
Размер
8.8x9.8 м
Спален
2
Санузлы
1
6 750 000р.
Подробнее
Заказать расчет стоимости Отправить заявку

Описание


Детальное описание


Планировки

Проект дома из клеенного бруса 5105
Проект дома из клеенного бруса 5105
Площадь
74 м2
Размер
8.8x9.8 м
Спален
2
Санузлы
1

Работаем под ключ по адекватным ценам
Работаем под ключ по адекватным ценам
Строим дома на территории УрФО
Строим дома на территории УрФО
100 лет – средний срок службы дома
100 лет – средний срок службы дома
10 лет гарантия на построенные дома
10 лет гарантия на построенные дома
Высокое качество строительства домов
Высокое качество строительства домов

Характеристики

Площадь 74
Этажей 1
Спален 2
Размер 8.8x9.8
Санузлы 1

Комплектация подробнее

Базовая Стандарт Комфорт Под ключ
Фундамент - железобетонные сваи 150х150 мм Фундамент - монолитный 300х400 мм Фундамент - монолитный 300х400 мм Фундамент - монолитный 300х400 мм
Стены - клееный брус 205х230 мм (премиальный) Стены - клееный брус 205х230 мм (премиальный) Стены - клееный брус 205х230 мм (премиальный) Стены - клееный брус 205х230 мм (премиальный)
Кровля - подготовка под чистовое покрытие Кровля - металлочерепица, утепление 250 мм Кровля - металлочерепица, утепление 250 мм Кровля - металлочерепица, утепление 250 мм
Технический надзор - 5 выездов Окна и двери - 2-ух камерный стеклопакет REHAU 60 мм (Германия) Окна и двери - 2-ух камерный стеклопакет REHAU 70 мм (Германия) Окна и двери - 2-ух камерный стеклопакет REHAU 70 мм (Германия)
Гарантия 10 лет Технический надзор - 7 выездов Полы 1-2 этажа - утепление 200 мм, фанера 18 мм Пол 1-2 этажа - утепление 200 мм, ламинат 12 мм
- Первое техническое обслуживание - бесплатно Перегородки 1-2 этажа - утепление 200 мм, подготовка под отделку Перегородки 1-2 этажа - утепление 200 мм, имитация бруса 20х230 мм
- Гарантия 10 лет Канализация - коллекторная разводка труб Электропроводка - под ключ
- - Водоснабжение - коллекторная разводка труб Канализация - под ключ
- - Отопление - скрытый монтаж Водоснабжение - под ключ
- - Технический надзор - 15 выездов Отопление - под ключ
- - Первое техническое обслуживание - бесплатно Технический надзор - 22 выезда
- - Гарантия 10 лет Первое техническое обслуживание - бесплатно
- - - Гарантия 10 лет
По запросу Заказать расчет стоимости По запросу Заказать расчет стоимости По запросу Заказать расчет стоимости По запросу Заказать расчет стоимости

Заказать расчет стоимости
Оформите заявку на сайте, мы свяжемся с вами в ближайшее время и ответим на все интересующие вопросы.