Шамони-Шале 2 этажный бревенчатый дом
Площадь
125 – 158 м2
Размер
124 – 142 м
Спален
6
Санузлы
2
по запросу
Подробнее
Заказать расчет стоимости
Отправить заявку
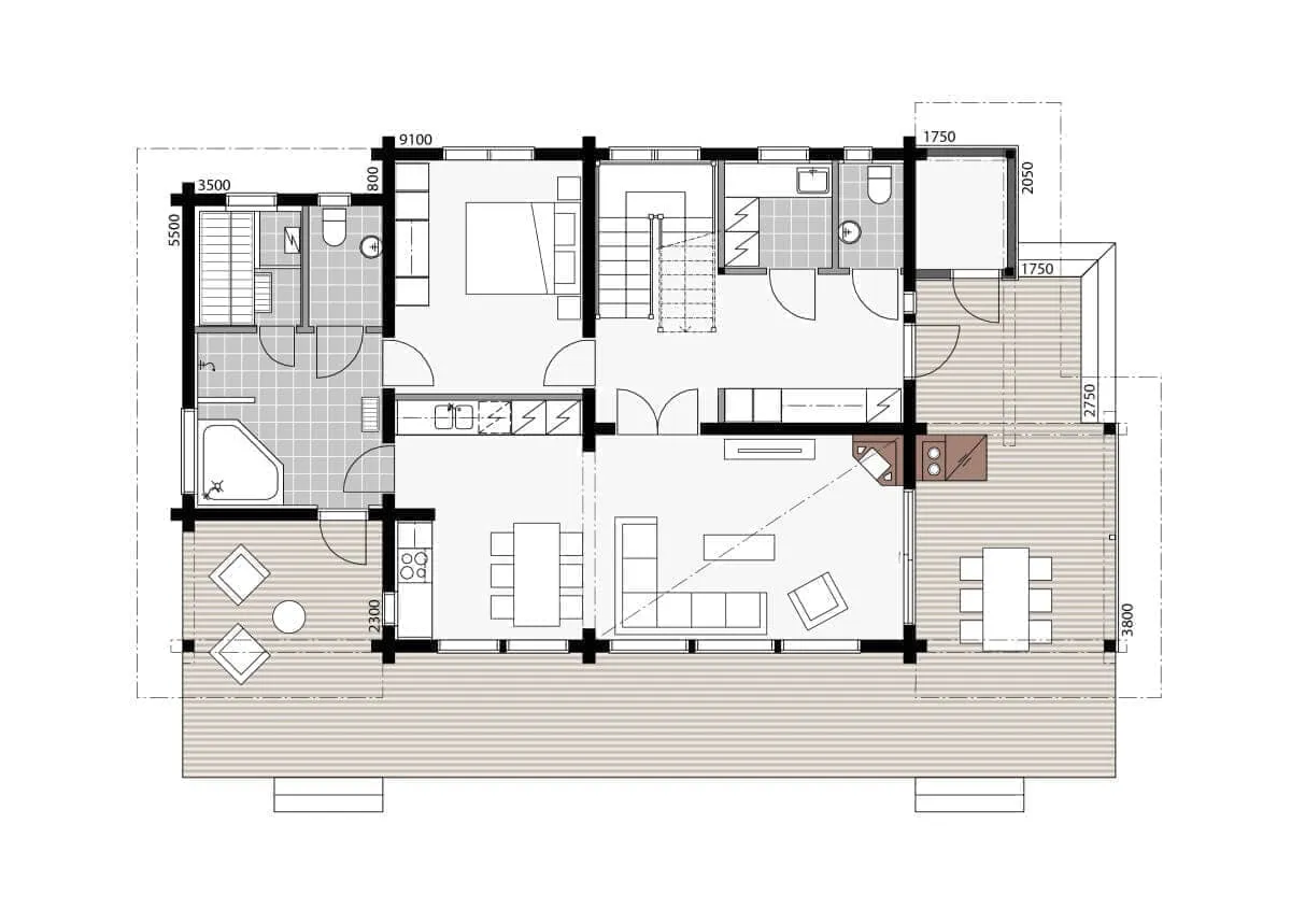
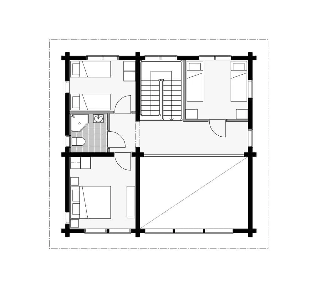
Планировки
Площадь
125 – 158 м2
Размер
124 – 142 м
Спален
6
Санузлы
2
Характеристики
| Площадь | 125 – 158 |
| Этажей | 2 |
| Спален | 6 |
| Гараж | без гаража |
| Размер | 124 – 142 |
| Санузлы | 2 |
Комплектация подробнее
| Базовая | Стандарт | Комфорт | Под ключ |
|---|---|---|---|
| Фундамент - железобетонные сваи 150х150 мм | Фундамент - монолитный 300х400 мм | Фундамент - монолитный 300х400 мм | Фундамент - монолитный 300х400 мм |
| Стены - клееный брус 205х230 мм (премиальный) | Стены - клееный брус 205х230 мм (премиальный) | Стены - клееный брус 205х230 мм (премиальный) | Стены - клееный брус 205х230 мм (премиальный) |
| Кровля - подготовка под чистовое покрытие | Кровля - металлочерепица, утепление 250 мм | Кровля - металлочерепица, утепление 250 мм | Кровля - металлочерепица, утепление 250 мм |
| Технический надзор - 5 выездов | Окна и двери - 2-ух камерный стеклопакет REHAU 60 мм (Германия) | Окна и двери - 2-ух камерный стеклопакет REHAU 70 мм (Германия) | Окна и двери - 2-ух камерный стеклопакет REHAU 70 мм (Германия) |
| Гарантия 10 лет | Технический надзор - 7 выездов | Полы 1-2 этажа - утепление 200 мм, фанера 18 мм | Пол 1-2 этажа - утепление 200 мм, ламинат 12 мм |
| - | Первое техническое обслуживание - бесплатно | Перегородки 1-2 этажа - утепление 200 мм, подготовка под отделку | Перегородки 1-2 этажа - утепление 200 мм, имитация бруса 20х230 мм |
| - | Гарантия 10 лет | Канализация - коллекторная разводка труб | Электропроводка - под ключ |
| - | - | Водоснабжение - коллекторная разводка труб | Канализация - под ключ |
| - | - | Отопление - скрытый монтаж | Водоснабжение - под ключ |
| - | - | Технический надзор - 15 выездов | Отопление - под ключ |
| - | - | Первое техническое обслуживание - бесплатно | Технический надзор - 22 выезда |
| - | - | Гарантия 10 лет | Первое техническое обслуживание - бесплатно |
| - | - | - | Гарантия 10 лет |
| По запросу Заказать расчет стоимости | По запросу Заказать расчет стоимости | По запросу Заказать расчет стоимости | По запросу Заказать расчет стоимости |
Заказать расчет стоимости
Оформите заявку на сайте, мы свяжемся с вами в ближайшее время и ответим на все интересующие вопросы.
