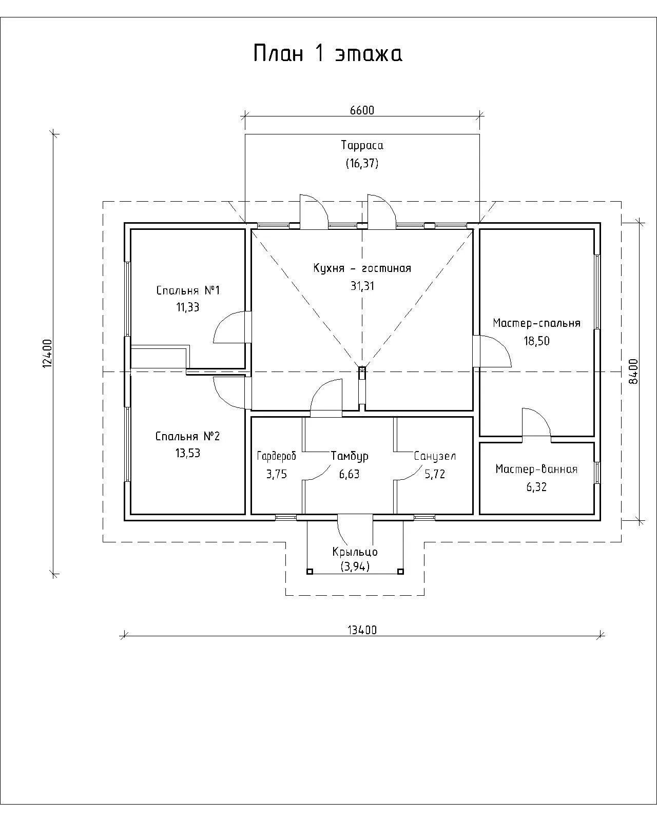
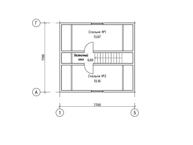
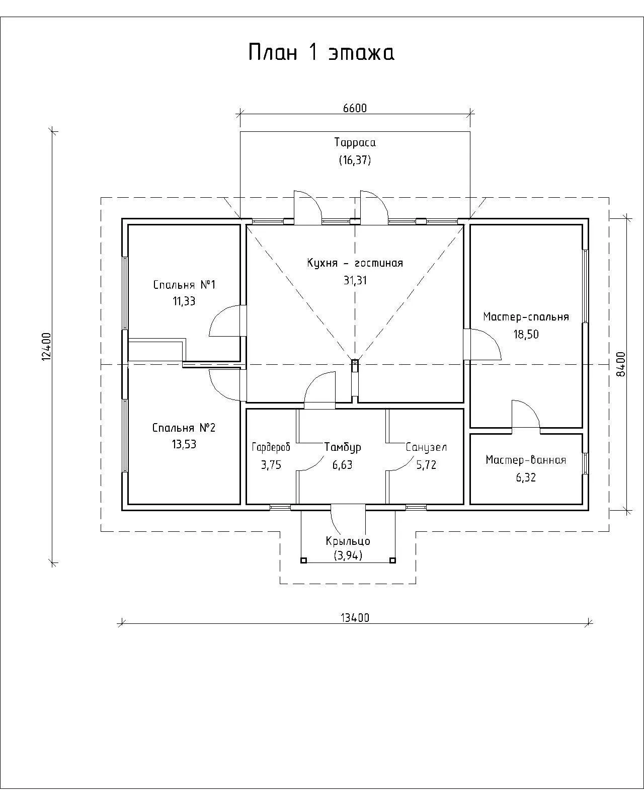
Описание
Состав комплекта каркаса «БАЛКЕР»:
- Комплект каркаса наружных стен из профильной клееной балки (тавр – 90 х125 м, угол – 90х125 мм).
- Комплект каркаса внутренних несущих стен из профильной клееной балки (тавр – 90х125 мм, угол – 90х125 мм).
- Комплекты каркаса перекрытий из профильной клееной балки (двутавр – 90х210 мм).
- Стропильная система из сухой строганной доски (влажность 12%, размер 45х145х6000 мм).
- Сертификат ГОСТ.
- Сертификат на огнебиозащиту.
- Сертификат на клей.
- Паспорт на изделие (эскизный проект, рабочие побалочные чертежи) в электронном виде.
Усиленный, надежный за счет профильных балок.
Быстрая сборка из готовых профилированных деталей по чертежам (доска на стропила в комплект входит, но не запилена).
Обработан огнебиозащитой путем окунания в ванну на производстве.


Технология строительства каркасного дома от завода «БАЛКЕР»
Используемая нами технология основана на эффективных решениях, взятых из опыта финских и канадских строителей, улучшена и имеет патент.
Метод строительства от завода «БАЛКЕР» адаптирован к российским условиям для севера и юга.
Сырьевой базой завода является Кировская область – регион произрастания плотной древесины («северного леса»). Что обеспечивает прочность и надежность каркаса.
Преимущества:
- весь домокомплект заводского изготовления;
- контроль качества на всех этапах производства;
- быстрая сборка каркаса все запилено на заводе;
- гарантия на каркас 5 лет;
- надежность конструкции домокомплекта в сравнении с аналогами.
Инструкция (рекомендация) по хранению комплекта каркаса БАЛКЕР и дополнительных пиломатериалов.
Для сохранности пиломатериалов важно, чтобы они оставались сухими и чистыми. Поэтому при складировании элементов каркаса, доски и бруса на объекте следует позаботиться об организации подходящего места. Лучший способ хранения – это сухой проветриваемый склад!
Если устроить хранение на складе не получается, то в обязательном порядке надо устроить навес. Навесы бывают открытые и закрытые, их расположение должно быть различным:
-
открытые навесы (без стен и пологов) строят вдоль преобладающих в местности ветров;
-
закрытые навесы – строго перпендикулярно направлению преобладающих ветров.
Кроме того, важно учесть следующие нюансы:
1. Место для хранения древесины нужно расположить на небольшом возвышении, предусмотреть уклон к краям – для оттока дождевой и талой воды.
2. Площадка должна быть максимально ровной – неровности потенциально способствуют тому, что древесный материал поведет.
3. Необходимо предотвратить впитывание древесиной влаги из грунта. Поэтому площадку желательно заасфальтировать или забетонировать. При отсутствии такой возможности, площадку укрывают толстым водонепроницаемым полиэтиленом, траву на площадке и вокруг скашивают.
4. Козырек (крыша) навеса должны перекрывать площадь расположения штабелей, желательно на 1 м со всех сторон. Так он будет сбивать дождевой поток в сторону и отбрасывать достаточную тень в солнечную погоду. Лучшее и недорогое кровельное покрытие для таких построек – листовой металл, металлочерепица, профнастил, а также рубероид.
Проследите, чтобы навес был построен из качественной сухой древесины, без гнили, плесени и грибка.
6. Если пиломатериалы складируются на площадке зимой, то крайне важно укрыть доски и брус от заметания снега. Под открытым навесом опытные строители рекомендуют использовать воздухопроницаемый брезент для надлежащей вентиляции.
7. При невозможности построить навес, укройте штабеля древесины листами шифера (не пленкой!). Не храните долго, начинайте строительные работы, по возможности, быстрее.
8. Для сведения к минимуму риск повреждения при разгрузке доски, элементы каркаса и иной пиломатериал должно быть недалеко нести. Организуйте подъезд для грузовой техники шириной в 3-4 м, не далее, чем в 5 м от места складирования. После разгрузки пиломатериал должен быть разложен в штабеля в летний период в течение суток, в зимний период в течение трёх суток.
9. Пиломатериал нужно хранить в неплотных штабелях. Для циркуляции воздуха под штабелем его следует укладывать на лежни. Для доски толщиной менее 30 мм - 4 лежня, для доски 30-60 мм – 3 лежня, для бруса достаточно 2 лежней.
В качестве лежней использовать сухой и обработанный биозащитой брус 100*100 мм или две доски 50*100 вместе на ребро. При использовании лежней из сырого пиломатериала велика вероятность поражения всего штабеля, даже обработанного биозащитой, плесневелыми грибами.
